欢迎来到安平县秉德丝网制品有限公司网站!

内蒙古霍林郭勒市刺钢丝隔离栅专业生产厂家
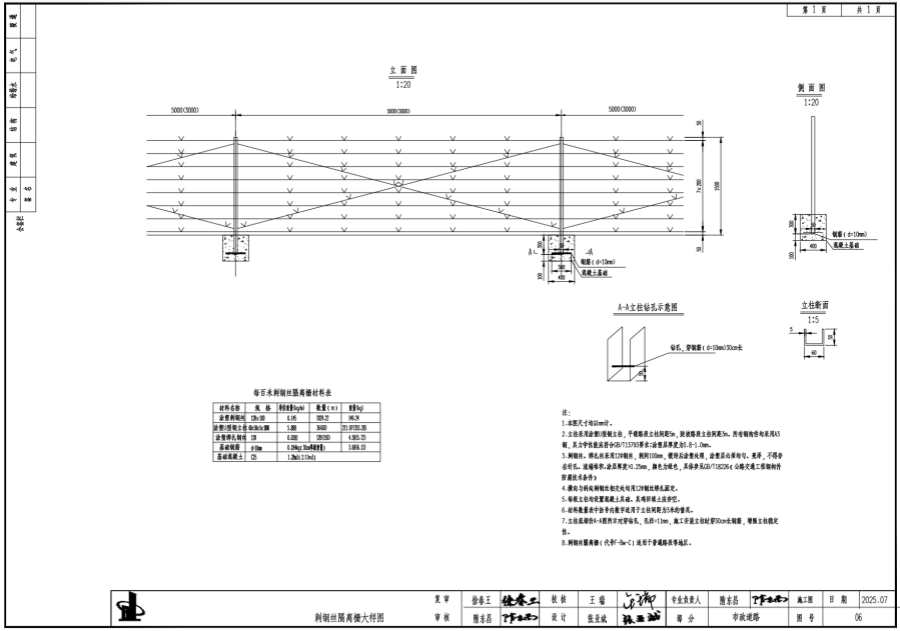
注
1.本图尺寸均以mm计。
2.立柱采用涂塑U型钢立柱,平缓路段立柱间距5m,陡坡路段立柱间距3m。所有钢构件均采用A3钢,其力学性能应符合GB/T13793要求;涂塑层厚度为0.8-1.0mm。
3.刺钢丝、绑扎丝采用12#钢丝,刺间100mm镀后涂处理,涂层必须均匀、亮泽,不得存在针孔、流端堆积,涂层厚度>0.25mm颜色为绿色具体参见GB/T18226《 公路交通工程钢构件防腐技术条件》。
4.横向与斜向刺钢丝相交处均用12#钢丝绑扎固定。
5.每根立柱均设置混凝土其础、其鸡回填土应夯空。
6.材料数量表中括号内数字适用于立间距为3米的情况。
7.立柱底部价A-A图所示对穿钻孔孔径=11mm施工安装立时穿30cm长钢筋,增强立柱稳定性。
8.刺钢丝隔离栅(代号F-Bw-C) 适用于普通路段等地区。