欢迎来到安平县秉德丝网制品有限公司网站!

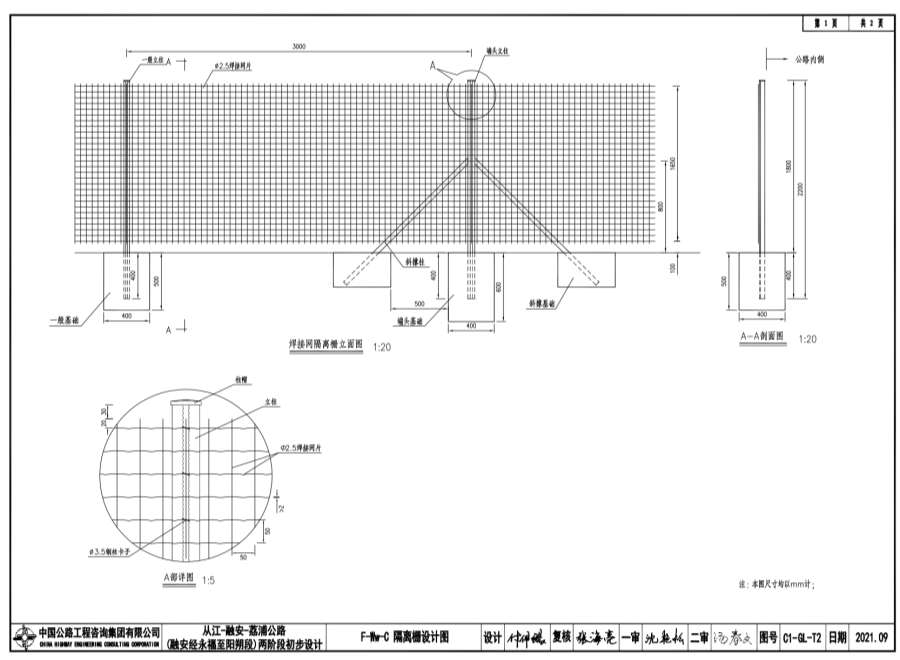
广西从江-融安-荔浦公路F-Ww-C焊接网隔离栅生产厂家
1.除材料数量表外,本图尺寸均以m计。
2.横丝采用低碳钢丝,力学性能应符合YB/T 5294中规定。纵丝采用高强度钢丝,其强度不低于650Mpa。
3.立柱采用焊接钢管制作,其化学成分与机械性能应满足GB/T 13793的规定。
4.全线隔离栅钢构件采用热浸镀锌浸塑复合涂层防腐工艺,隔离立及网片连接板平均镀锌层附着量不小于275g/㎡,浸塑层最小厚度为250微米;紧固件的平均镀锌层附着量不小于120g/㎡ ,浸塑复合涂层最小厚度为250微米。(颜色为果绿色)。焊接网隔离栅网片,刺钢丝隔离栅刺钢丝采用热浸锌浸塑复合涂层防腐工艺平均镀锌层附着量不小于90g/平方米,浸层最小厚度为150微米;(颜色为果绿)。所有钢构件防腐处理应符合GB/T18226《公路交通工程钢构件防腐技术条件》的规定。
6.在跨越天然障碍物时,端头处应设置横向和纵向斜撑。
7.端头立柱未连接斜撑柱的空余开孔应封堵死,以防止雨水进入。